FRANCE PATRIMOINE ET INVESTISSEMENTS Agence
Télécharger la fiche
Coup de coeur

Maison 3 pièce(s) 2 chambre(s) 74.55 m²

Mérignac (33700)
320 000 € Référence VN 50012

A propos de ce bien

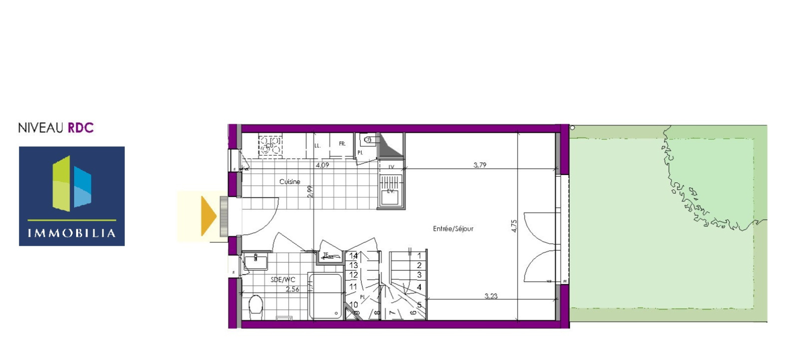
MÉRIGNAC BEUTRE - JOLIE MAISON NEUVE DUPLEX TYPE T3 DEUX CHAMBRES , DEUX SALLES D'EAU , ELLE EST DISPONIBLE DE SUITE- SITUÉ AU CALME PROCHE DE LA FORÊT - 67 M² HABITABLES + JARDIN PRIVATIF DE 25M² - FRAIS DE NOTAIRE 3% - GARANTIES BIENNALE ET DÉCENNALE . VOUS CHERCHEZ UNE MAISON PRATIQUE? TOUT DE SUITE, PROCHE DE BORDAUX;;; VOUS Y ÈTES !

AGENCE IMMOBILIA BORDEAUX ORNANO 05 56 28 43 70 COMMERCIAL 06 63 47 14 01

IMMOBILIA FPI "Avec vous, proche de vous" -

Caractéristiques de ce bien

  • Surface 74,55 m²
  • carrez 66,55 m²
  • séjour 22,21 m²
  • 2 chambre(s)
  • 2 salle(s) d'eau
  • construit en 2024
  • cuisine américaine (semi-équipée)
  • Chauffage individuel : radiateur (gaz de ville)
  • 2 parking(s)
  • exposition Nord-Est
  • 2 côté(s) mitoyen(s)
  • 2 niveau(x)
  • vue JARDIN ET LOTISSEMENT
  • quartier BEUTRE

Diagnostics énergétiques

Consommation énergétique
A B C D E F G
Emission de gaz à effet de serre
A B C D E F G

Montant estimé des dépenses annuelles d'énergie de ce logement pour un usage standard est compris entre 386 € et 523 € . 2021 étant l'année de référence des prix de l'énergie utilisés pour établir cette estimation.

Informations financières

Prix de vente 320 000 € Les honoraires d'agence seront intégralement à la charge du vendeur
Dépôt de garantie TTC 1 500 €

Calcul des mensualités

* Champs obligatoires